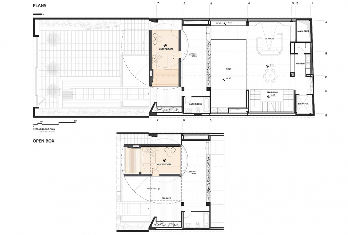
Jetzt wird es allmählich knifflig. Denn eine Immobilie ist per Wortbedeutung ja etwas Unbewegliches. Was ist aber, wenn sich die Häuser zu bewegen anfangen? Etwa wie das Haus Sharifi-ha in Teheran (Iran), entworfen von Alireza Taghaboni und seinem dort ansässigen Architekturbüro „Next Office“. Aber nein: Auch wenn das Bewegungssystem von der in Hockenheim ansässigen Firma Bumat Bewegungssysteme stammt, fährt das Haus keine Rennen und auch nicht davon. Doch die Technik vom Drehbühnenspezialisten Bumat Bewegungssysteme, der sonst Drehbühnen für Theater oder Autoshows produziert, vermag einzelne Räume zu drehen - in knapp 20 Sekunden um 90 Grad dank eines geräuscharmen, umrichtergesteuerten Getriebemotors mit großer Übersetzung und einer Leistung von 1,1 kWh. So können diese Boxen mit ihren Fensterfronten samt davor gelagerten Balkonen mit Glasbrüstung geschmeidig etwa der Sonne folgen oder bei hohen Temperaturen von der Sonne weggedreht werden.
Gestalterisch stellte sich dem Architekten die Aufgabe, eine Fassade zu entwickeln, die mit den Veränderungen zurechtkommt. Die drehbaren Räume in Holz von knapp 20 Quadratmetern Wohnfläche der drei Obergeschosse verlangten ein dynamisches Design, das die unterschiedlichen Stellungen der Räume nicht als Unordnung wirken lässt, sondern gerade die Veränderbarkeit zum Thema macht. In den Extremstellungen zeigen die mobilen Räume ihre Flanke in Holz oder richten sich wie drei kantige Fernrohre mit den Fenstern in die Landschaft, etwa drei Meter aus der Fassade herausragend. Dazwischen sind unzählige Schrägstellungen möglich. Innen bedeutet es, dass unterschiedliche Aussichten zustande kommen oder eben eine intime Abgeschlossenheit ohne Einblick von außen. Ebenso, dass sich die räumliche Konstellation ändert.


Die Bewegung der Räume geschieht mittels Kugeldrehkränzen auf festgelegten Drehachsen. Unmittelbar davor dichten pneumatische Dichtleisten die Räume nach außen ab. Sie werden mit einem Kompressor aufgeblasen beziehungsweise anschließend vakuumiert. Bauteile wie Brüstungsgeländer sowie Fußbodenbereiche werden dazu abgesenkt, um nicht mit den sich bewegenden Boxen zu kollidieren. Erbaut wurde das außergewöhnliche Haus vom iranischen Architekten Alireza Taghaboni. Er ist 1977 geboren und studierte von 1995 bis 2004 in Gilan am kaspischen Meer sowie in Teheran Architektur, um anschließend dort sein eigenes Büro Next Office zu eröffnen. Bis heute entwarf Taghaboni rund 60 Bauprojekte, darunter 2013 das Haus Sharifi-ha.

Es füllte eine Lücke zwischen zwei Bestandsbauten, verfügt daher über keine seitlichen Fenster. Hinter der elf Meter breiten Straßenfassade nach Süden, die als einzige über Öffnungen verfügt, erstreckt sich der Bau 33 Meter in die Tiefe. In der fünfgeschossigen Anlage folgt er der angrenzenden Bestandsbebauung, wobei der Eingangsbereich im Erdgeschoss deutlich zurückspringt. Dort findet sich eine Personalwohnung, Lager- und Nebenräume sowie eine Garage mit drei PKW-Stellplätzen. Von der räumlichen Konzeption her adaptierte Taghaboni das Schema eines traditionellen iranischen Herrenhauses mit zwei Wohnzimmern: eines für den Sommer, eines für den Winter.
Über dem zentralen Raum öffnet sich ein doppelgeschossiger Luftraum zwischen Küche, Ess- und Wohnzimmer im ersten Obergeschoss und dem Heimkino mit Küche darüber. Der unterste drehbare Fassadenquader beherbergt ein Frühstückszimmer, der mittlere ein Gästezimmer, der oberste ein Arbeitszimmer, dort im Anschluss an einen weiteren Koch- und Essbereich sowie die elterlichen Schlafzimmer mit Bad. Die Kinderschlafzimmer befinden sich im zurückgesetzten Dachgeschoss, wo ein Atrium von oben her beleuchtet ist, wobei die Verglasung wohl zum Wärmeschutz wasserbedeckt ist. Deckendurchbrüche lassen das Licht weiter bis in die Untergeschosse hinab, wo sich die Freizeitaktivitäten wie Billardspielen, Fithalten und Schwimmen abspielen. Ein Jacuzzi sowie eine Sauna stehen dort ebenfalls zur Verfügung.
REINHARD PALMER
Erschienen im Tagesspiegel am 02.03.2024